Étude de potentiel
L’étude de potentiel est la première étape de votre projet. Elle nous permet de faire connaissance et d’analyser ensemble les possibilités offertes par votre logement.
Lors de notre premier rendez-vous, nous visitons les lieux afin d’identifier les différentes problématiques, les contraintes techniques et le potentiel existant. Nous échangeons en profondeur sur vos habitudes de vie, vos besoins, vos envies et vos attentes. Ensemble, nous établissons un cahier des charges précis et détaillé.
Mon rôle est également d’aller au-delà de vos demandes exprimées, afin de révéler des besoins parfois inconscients et de ne rien laisser au hasard.
Je vous présente à cette occasion ma méthodologie de travail et le déroulé des étapes suivantes.
Si vous souhaitez poursuivre le projet, je reviens pour un second rendez-vous afin d’effectuer les relevés de cotes complets du logement et de réaliser un reportage photographique. À partir de ces éléments, je dessine l’état des lieux détaillé et j’analyse l’espace dans ses moindres dimensions et contraintes.
Cette base me permet ensuite de passer à la phase créative : je vous propose trois scénarios d’aménagement, pensés en fonction de vos besoins, de votre mode de vie et des spécificités de votre habitat.
Le détail de la prestation
-

Le cahier des charges
Avant de parler couleurs, matières ou mobilier, il y a une étape essentielle : prendre le temps de vous écouter.
Le cahier des charges, c’est ce moment privilégié où nous posons ensemble les bases de votre projet. Un moment d’échange, pas un questionnaire rigide.
C’est un véritable temps de dialogue. Vous pouvez me parler de ce que vous aimez, de ce que vous ne supportez plus dans votre espace actuel, de vos inspirations, de vos habitudes quotidiennes… Chaque détail compte.
-

Le relevé de cotations
Le relevé de côtes est une étape clé qui consiste à mesurer précisément votre espace existant. Il me permet d’avoir une base fiable et détaillée pour concevoir un projet parfaitement adapté aux volumes, aux contraintes techniques et aux spécificités de votre intérieur.
Des mesures justes, c’est la garantie d’un aménagement fluide, fonctionnel et sans mauvaise surprise. Parce qu’un beau projet commence toujours par une base précise.
-

Reportage photographique des lieux
Le reportage photographique consiste à capturer l’état des lieux existant lors de ma visite.
Il me permet de conserver une vision fidèle des volumes, des détails techniques et des spécificités du lieu lorsque je poursuis le travail au bureau.
Ces images deviennent un véritable support de référence tout au long du projet. Parce qu’une conception précise commence par une observation attentive.
-

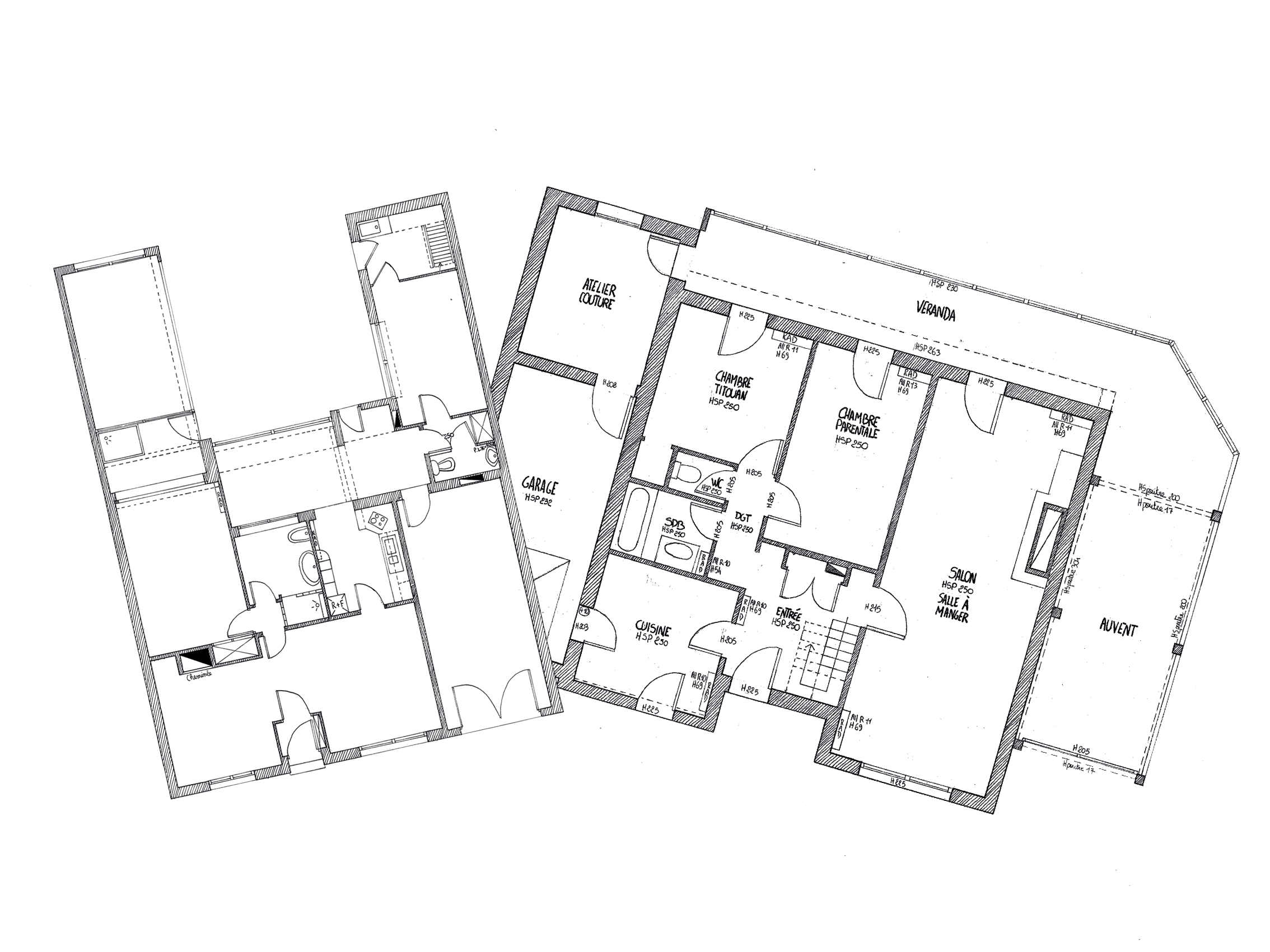
Plan de l'état des lieux
L’état des lieux est une analyse attentive de l’existant lors de la première visite.
Il me permet d’identifier les contraintes techniques, les points forts du lieu et les éléments à conserver ou à transformer. (Généralement réalisé en plan 2D)
Cette étape pose un regard objectif et précis sur votre espace avant toute proposition. Parce qu’un projet réussi commence toujours par une compréhension juste du lieu.
-

Proposition de projets
La proposition de projets est la première proposition concrète de votre futur intérieur.
Il traduit le cahier des charges en intentions d’aménagement, en volumes, en ambiances et en premières orientations esthétiques. Je vous propose généralement trois versions.
Cette étape permet de valider ensemble la direction du projet avant d’entrer dans les détails techniques. Un projet réussi se construit étape par étape, en toute confiance.
ÉTUDE DE POTENTIEL = Propositions de projets d’aménagements